Villa a schiera in vendita

Lonato Del Garda, Via barcuzzi - Barcuzzi
€ 395.000
4 locali 4 locali
145 Mq 145 Mq
2 bagni 2 bagni

Villa a schiera in vendita

Lonato Del Garda, Via barcuzzi - Barcuzzi

Descrizione annuncio

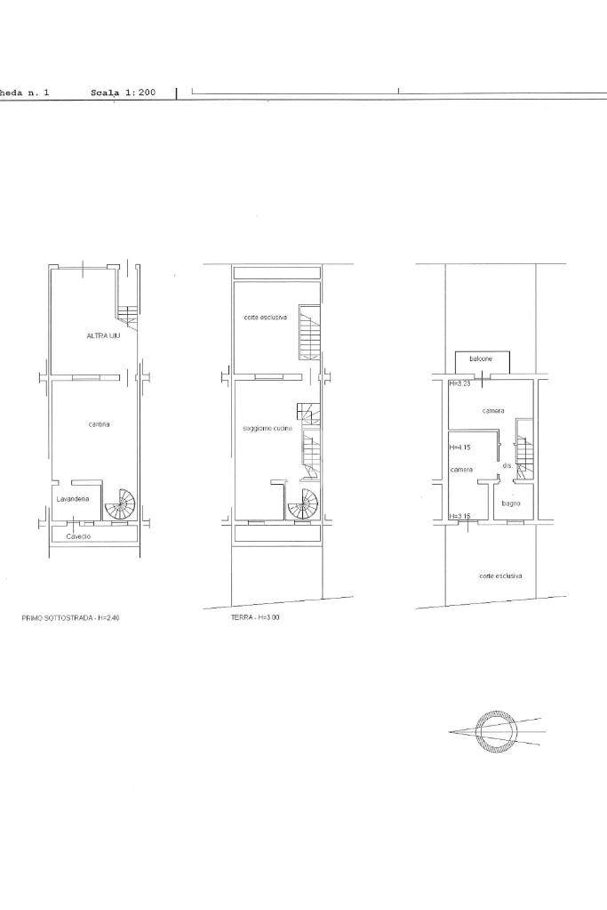
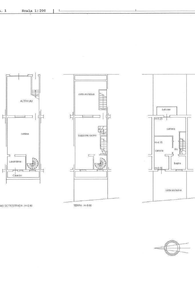
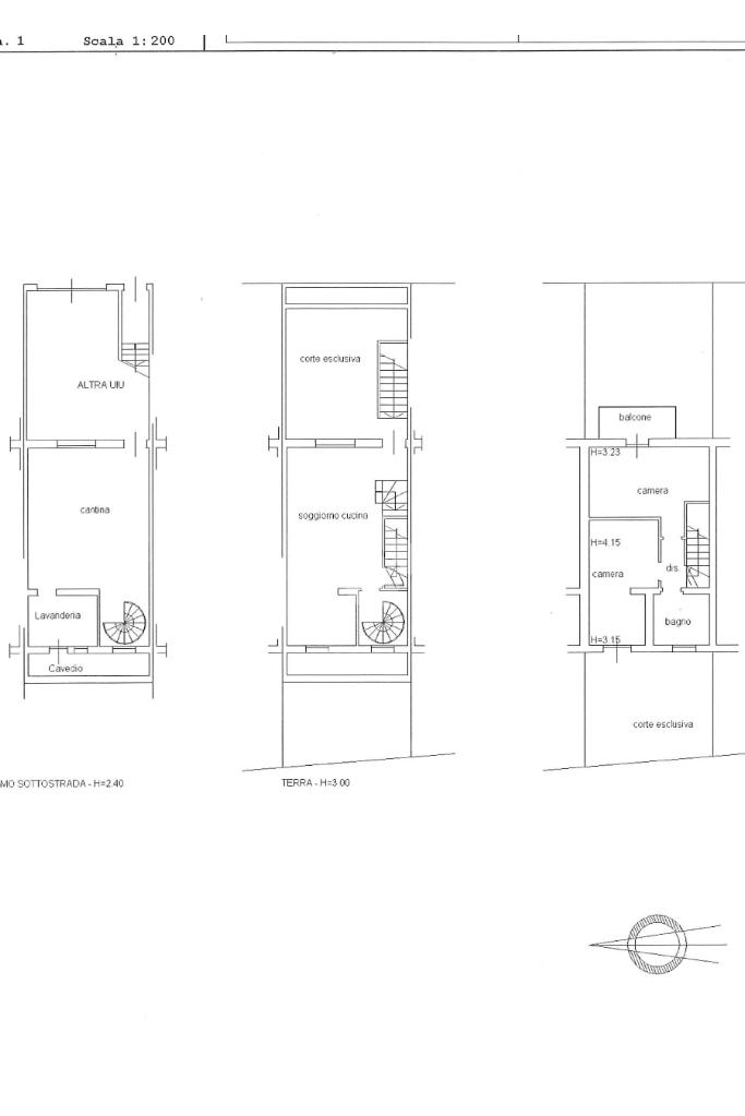
Scopri questa affascinante casa indipendente in vendita, situata in una delle zone più ambite del Paese. Con una meravigliosa vista lago, questa proprietà offre un perfetto equilibrio tra comfort ed eleganza. Inserita in un piccolo contesto di sole dieci unità caratterizzato dalla propria piscina privata è situata in una posizione riservata per godersi al meglio tutta la riservatezza di cui ognugno ha bisogno. La porzione di casa indipendente terra/cielo è di recente costruzione e presenta finiture ricercate, pavimentazione in parquet che conferisce calore e carattere agli ambienti. La casa dispone di locali ampi ed accoglienti e due bagni finestrati, ideali per garantire luminosità e praticità. Il giardino privato è il luogo perfetto per rilassarsi o organizzare cene all'aperto godendo della spettacolare vista lago. Inoltre, la lavanderia nell'interrato, la grande taverna ed il garage offrono ulteriore comodità. Situata a pochi passi da tutti i servizi e in prossimità delle principali vie di comunicazione, questa casa rappresenta un'opportunità unica per chi cerca un'abitazione moderna e funzionale. Non perdere l'occasione di vivere in un contesto così esclusivo! Contattaci per maggiori informazioni e per prenotare una visita!

Mostra tutto

Nelle vicinanze

Trasporto pubblico Trasporto pubblico
Lonato
Lonato
2,5 Km
Trasporto pubblico
2,1 Km
Padenghe
2,4 Km
Ricariche auto elettriche Ricariche auto elettriche
GardaUno Lonato Famila
2,1 Km
Splendido Bay Luxury Spa Resort
2,1 Km
Ristorante Pizzeria Silvano - evway
2,5 Km
Scuole Scuole
Istituto di Istruzione Superiore Luigi Cerebotani
2,1 Km
Scuola Secondaria di I Grado Camillo Tarello
2,2 Km
Farmacia Farmacia
Farmacia Morandi
2,1 Km
Farmacia
2,3 Km
Ospedali Ospedali
Azienda Ospedaliera di Desenzano del Garda
2,2 Km
Supermercati Supermercati
Famila
2,1 Km
Dpiù
2,8 Km
Italmark
2,8 Km
Lidl
3,0 Km
Bar Bar
Coco Beach
2,2 Km
Bar
2,2 Km
Ristoranti Ristoranti
Il Rivale - L'Osteria di Palazzo
2,1 Km
Ristoranti
2,1 Km
Coco Beach
2,2 Km
Primavera al Lago
2,3 Km
La Stella del Garda
2,3 Km
Mostra tutto

Caratteristiche

Rif.:
61179036
Piano:
1 di 3 (Piano su più livelli)
Box:
1
Posti auto:
2
Balconi:
1
Terrazzi:
1
Mostra tutto
Prezzo Prezzo
€ 395.000
Rata mutuo Rata mutuo
€ 1.884 / mese
Spese annue Spese annue
€ 1.400
Proponi il tuo prezzoProponi il tuo prezzo
Immobile valutato con T·Valuta

Classe Energetica

E
E
E
E
E
E
E
E
E
EP globale non rinnovabile:
164.64 kW h/m² anno
EP globale rinnovabile:
164.64 kW h/m² anno
EP invernale del fabbricato:
EP estiva del fabbricato:
Anno di costruzione:
2004
Riscaldamento:
Autonomo
Tipo impianto:
A pavimento
Tipo alimentazione:
Metano

Ti interessa visionare l'immobile?

Fissa un appuntamento  Fissa un appuntamento

Richiedi informazioni

Clicca su Leggi per aprire l'informativa
* Questi campi sono obbligatori

Calcola il tuo mutuo

Semplice e senza impegno
Anticipo

( % )
Mutuo

( % )

pochi semplici passi

inserisci i tuoi dati
Questionario completato
Grazie per aver richiesto un appuntamento senza impegno con un nostro Consulente del Credito e Assicurativo.

Hai inserito correttamente tutti i dati necessari e a breve riceverai una e-mail con un link da convalidare per inviare i tuoi dati.
Affiliato
Agenzia Di Lonato Sas
Via Marziale Cerutti, 13 25017 Lonato Del Garda (BS)

Il nostro staff


  • Anna Bergomi
    Affiliata

  • Luca Bergomi
    Affiliato

  • Luca Marino
    Affiliato

  • Salvatore Ariano
    Collaboratore
Via Marziale Cerutti, 13 25017 Lonato Del Garda (BS)
Zona: Lago di Garda-Lonato del Garda
Mostra su mappa
Orari: 09:00 - 12:30 14:30 - 19:00; il sabato chiude alle 18:00
Affiliato
Agenzia Di Lonato Sas
Via Marziale Cerutti, 13 25017 Lonato Del Garda (BS)

2026 Tecnocasa Franchising S.p.A. - P. IVA 08365160152 - Via Monte Bianco 60/A 20089 Rozzano (MI). Ogni agenzia ha un proprio titolare ed è autonoma. Privacy policy | Policy utilizzo | Cookie policy